メゾン・プランドール
築年数 築35年
総階数2階建
- 岩倉忠在地町523-1
-
- 叡山電鉄鞍馬線 岩倉 徒歩9分
叡山電鉄鞍馬線 木野 徒歩19分
- 叡山電鉄鞍馬線 岩倉 徒歩9分
掲載物件1件
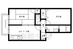
| 間取り図 | 階 | 賃料/管理費等 | 敷金/礼金 | 間取/面積 | |
|---|---|---|---|---|---|
|
2階
|
6.5万円 0円 |
敷6.5万円 礼6.5万円 |
2DK
51.75m2 |
|





























































































































































































































































































































































































































































































































































































































































































































































































































































































































































































































