サンハイツ広野
築年数 築20年
総階数2階建
- 広野町
-
- 近鉄京都線 大久保 徒歩12分
JR奈良線 新田 徒歩6分
- 近鉄京都線 大久保 徒歩12分
掲載物件2件
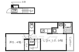
| 間取り図 | 階 | 賃料/管理費等 | 敷金/礼金 | 間取/面積 | |
|---|---|---|---|---|---|
|
1階
|
7.0万円 3,000円 |
敷0.0万円 礼7.0万円 |
2DK
44m2 |
|
|
1階
|
7.0万円 3,000円 |
敷0.0万円 礼7.0万円 |
2DK
44m2 |
|




























































































































































































































































































































































































































































































































































































































































































































































































































































































































