ソレイユ
築年数 築10年
総階数2階建
- 小倉町春日森
-
- 近鉄京都線 小倉 徒歩13分
JR奈良線 JR小倉 徒歩33分
- 近鉄京都線 小倉 徒歩13分
掲載物件4件
| 間取り図 | 階 | 賃料/管理費等 | 敷金/礼金 | 間取/面積 | |
|---|---|---|---|---|---|
|
1階
|
9.8万円 8,000円 |
敷0.0万円 礼18.0万円 |
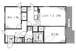
2LDK
61.83m2 |
|
|
1階
|
9.8万円 8,000円 |
敷0.0万円 礼18.0万円 |
2LDK
61.83m2 |
|
|
1階
|
9.8万円 8,000円 |
敷0.0万円 礼18.0万円 |
2LDK
61.83m2 |
|
|
1階
|
9.8万円 8,000円 |
敷0.0万円 礼18.0万円 |
2LDK
61.83m2 |
|




















































































































































































































































































































































































































































































































































































































































































































































































































































































































































































































































































