パルテール・アイ
築年数 築3年
総階数2階建
- 小林台13番地の5
-
- JR御殿場線 下土狩 徒歩18分
JR東海道本線 沼津 バス27分南小林下車 徒歩7分
- JR御殿場線 下土狩 徒歩18分
掲載物件4件
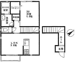
| 間取り図 | 階 | 賃料/管理費等 | 敷金/礼金 | 間取/面積 | |
|---|---|---|---|---|---|
|
2階
|
6.7万円 3,990円 |
敷0.0万円 礼7.7万円 |
1LDK
50.96m2 |
|
|
2階
|
6.7万円 3,990円 |
敷0.0万円 礼7.7万円 |
1LDK
50.96m2 |
|
|
2階
|
6.7万円 3,990円 |
敷0.0万円 礼7.7万円 |
1LDK
50.96m2 |
|
|
2階
|
6.7万円 3,990円 |
敷0.0万円 礼7.7万円 |
1LDK
50.96m2 |
|




































































































































































































































































































































































































































































