コート・ヴィレッジII
築年数 新築
総階数2階建
- 篠町篠赤畑
-
- JR山陰本線 馬堀 徒歩20分
JR山陰本線 亀岡 徒歩44分
- JR山陰本線 馬堀 徒歩20分
掲載物件4件
| 間取り図 | 階 | 賃料/管理費等 | 敷金/礼金 | 間取/面積 | |
|---|---|---|---|---|---|
|
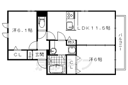
1階
|
9.6万円 5,500円 |
敷0.0万円 礼9.6万円 |
2LDK
50.47m2 |
|
|
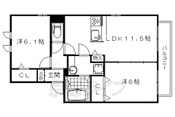
1階
|
9.6万円 5,500円 |
敷0.0万円 礼9.6万円 |
2LDK
50.47m2 |
|
|
1階
|
9.6万円 5,500円 |
敷0.0万円 礼9.6万円 |
2LDK
50.47m2 |
|
|
1階
|
9.6万円 5,500円 |
敷0.0万円 礼9.6万円 |
2LDK
50.47m2 |
|















































































































































































































































































































































































































































































































































































































































































































































