ヴィヴァン・ノール
築年数 築26年
総階数2階建
- 森北1丁目
-
- JR片町線(学研都市線) 河内磐船 徒歩3分
京阪交野線 河内森 徒歩7分
- JR片町線(学研都市線) 河内磐船 徒歩3分
掲載物件4件
| 間取り図 | 階 | 賃料/管理費等 | 敷金/礼金 | 間取/面積 | |
|---|---|---|---|---|---|
|
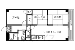
1階
|
7.5万円 8,000円 |
敷0.0万円 礼7.5万円 |
2LDK
57.96m2 |
|
|
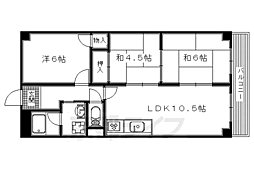
1階
|
7.5万円 8,000円 |
敷0.0万円 礼7.5万円 |
2LDK
57.96m2 |
|
|
1階
|
7.5万円 8,000円 |
敷0.0万円 礼7.5万円 |
2LDK
57.96m2 |
|
|
1階
|
7.5万円 8,000円 |
敷0.0万円 礼7.5万円 |
2LDK
57.96m2 |
|























































































































































































































































































































































































































































































































































































































































































































