グランレジデンス熱田の宮
築年数 築9年
総階数4階建
- 千年1丁目
-
- 名古屋市営名城線 熱田神宮伝馬町 徒歩17分
名鉄名古屋本線 神宮前 徒歩24分
- 名古屋市営名城線 熱田神宮伝馬町 徒歩17分
掲載物件1件
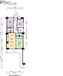
| 間取り図 | 階 | 賃料/管理費等 | 敷金/礼金 | 間取/面積 | |
|---|---|---|---|---|---|
|
1階
|
9.5万円 7,500円 |
敷0.0万円 礼9.5万円 |
2LDK
60.88m2 |
|



















































































































































































































































































































































































































































































