六角高倉パーク・ホームズ
築年数 築27年
総階数10階建
- 六角通高倉西入滕屋町
-
- 京都市営烏丸線 烏丸御池 徒歩6分
阪急京都本線 烏丸 徒歩8分
- 京都市営烏丸線 烏丸御池 徒歩6分
掲載物件1件
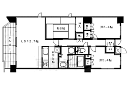
| 間取り図 | 階 | 賃料/管理費等 | 敷金/礼金 | 間取/面積 | |
|---|---|---|---|---|---|
|
5階
|
22.5万円 0円 |
敷22.5万円 礼22.5万円 |
3LDK
75.21m2 |
|





















































































































































































































































































































































































































































































































































































































































































































































































































