パークホームズ烏丸御池三条町
築年数 築12年
総階数5階建
- 新町通三条下る三条町
-
- 京都市営烏丸線 烏丸御池 徒歩5分
京都地下鉄東西線 烏丸御池 徒歩5分
- 京都市営烏丸線 烏丸御池 徒歩5分
掲載物件1件
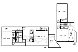
| 間取り図 | 階 | 賃料/管理費等 | 敷金/礼金 | 間取/面積 | |
|---|---|---|---|---|---|
|
1階
|
28.0万円 0円 |
敷28.0万円 礼56.0万円 |
2LDK
72.99m2 |
|


































































































































































































































































































































































































































































































































































































































































































