カーサ ディソール壬生
築年数 築15年
総階数3階建
- 壬生東檜町
-
- 阪急京都本線 西院 徒歩10分
JR山陰本線 丹波口 徒歩13分
- 阪急京都本線 西院 徒歩10分
掲載物件4件
| 間取り図 | 階 | 賃料/管理費等 | 敷金/礼金 | 間取/面積 | |
|---|---|---|---|---|---|
|
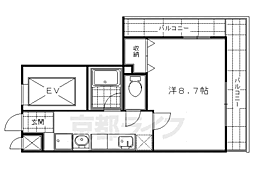
3階
|
6.2万円 3,500円 |
敷0.0万円 礼8.0万円 |
1K
26.63m2 |
|
|
3階
|
6.2万円 3,500円 |
敷0.0万円 礼8.0万円 |
1K
26.63m2 |
|
|
3階
|
6.2万円 3,500円 |
敷0.0万円 礼8.0万円 |
1K
26.63m2 |
|
|
3階
|
6.2万円 3,500円 |
敷0.0万円 礼8.0万円 |
1K
26.63m2 |
|



































































































































































































































































































































































































































































































































































































































































































































































































































































































































