石垣ハイツ
築年数 築38年
総階数3階建
- 星丘2丁目
-
- 京阪交野線 星ケ丘 徒歩11分
京阪交野線 村野 徒歩13分
- 京阪交野線 星ケ丘 徒歩11分
掲載物件3件
| 間取り図 | 階 | 賃料/管理費等 | 敷金/礼金 | 間取/面積 | |
|---|---|---|---|---|---|
|
1階
|
6.8万円 5,000円 |
敷0.0万円 礼13.6万円 |
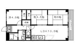
2LDK
61.2m2 |
|
|
1階
|
7.0万円 5,000円 |
敷0.0万円 礼14.0万円 |
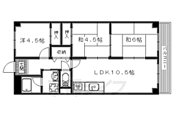
2LDK
61.2m2 |
|
|
3階
|
7.0万円 5,000円 |
敷0.0万円 礼14.0万円 |
2LDK
61.2m2 |
|

































































































































































































































































































































































































































































































































































































































































































