ロンシャンパレス
築年数 築26年
総階数6階建
- 大和東3丁目
-
- 小田急江ノ島線 大和 徒歩8分
相鉄本線 瀬谷 徒歩25分
- 小田急江ノ島線 大和 徒歩8分
掲載物件2件
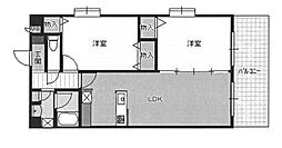
| 間取り図 | 階 | 賃料/管理費等 | 敷金/礼金 | 間取/面積 | |
|---|---|---|---|---|---|
|
5階
|
9.5万円 7,000円 |
敷9.5万円 礼9.5万円 |
2LDK
57.06m2 |
|
|
1階
|
10.8万円 7,000円 |
敷10.8万円 礼10.8万円 |
2LDK
51.72m2 |
|





















































































































































































































































































































































