ルフォン蔵前ザ・レジデンス
築年数 築6年
総階数15階建
- 蔵前2丁目9-12
-
- 都営大江戸線 蔵前 徒歩4分
都営浅草線 浅草 徒歩8分
- 都営大江戸線 蔵前 徒歩4分
掲載物件1件
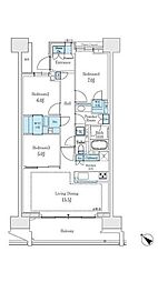
| 間取り図 | 階 | 賃料/管理費等 | 敷金/礼金 | 間取/面積 | |
|---|---|---|---|---|---|
|
8階
|
36.0万円 0円 |
敷36.0万円 礼36.0万円 |
3LDK
70.3m2 |
|





































































































































































































































































































































































































