コーポレート西大井
築年数 築29年
総階数4階建
- 西大井2丁目10-16
-
- JR横須賀線 西大井 徒歩5分
都営浅草線 馬込 徒歩11分
- JR横須賀線 西大井 徒歩5分
掲載物件2件
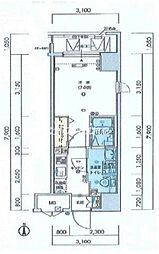
| 間取り図 | 階 | 賃料/管理費等 | 敷金/礼金 | 間取/面積 | |
|---|---|---|---|---|---|
|
4階
|
10.8万円 6,000円 |
敷10.8万円 礼10.8万円 |
1R
34.89m2 |
|
|
4階
|
10.8万円 6,000円 |
敷10.8万円 礼10.8万円 |
1R
34.89m2 |
|





























































































































































































































































































































































































































































































































































