
キャプテンズ・コート
築年数 築14年
総階数4階建
- 東矢口3丁目31-10
-
- JR京浜東北・根岸線 蒲田 徒歩9分
東急池上線 蓮沼 徒歩7分
- JR京浜東北・根岸線 蒲田 徒歩9分
掲載物件1件
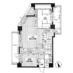
間取り図 | 階 | 賃料/管理費等 | 敷金/礼金 | 間取/面積 | |
---|---|---|---|---|---|
![]() |
3階
|
15.5万円 6,000円 |
敷15.5万円 礼34.1万円 |
1LDK
49.98m2 |
|