
リビオレゾン品川戸越
築年数 築13年
総階数14階建
- 東中延1丁目4-7
-
- 都営浅草線 戸越 徒歩6分
東急大井町線 戸越公園 徒歩7分
- 都営浅草線 戸越 徒歩6分
掲載物件1件
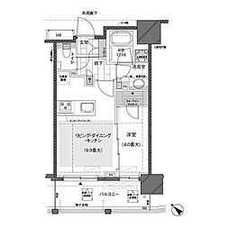
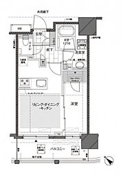
間取り図 | 階 | 賃料/管理費等 | 敷金/礼金 | 間取/面積 | |
---|---|---|---|---|---|
![]() |
3階
|
20.6万円 0円 |
敷20.6万円 礼41.2万円 |
2LDK
46.33m2 |
|