コンシェリア品川 THE RESIDENCE
築年数 築10年
総階数5階建
- 西品川1丁目20-5
-
- 東急大井町線 下神明 徒歩7分
JR京浜東北・根岸線 大井町 徒歩9分
- 東急大井町線 下神明 徒歩7分
掲載物件1件
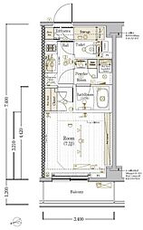
| 間取り図 | 階 | 賃料/管理費等 | 敷金/礼金 | 間取/面積 | |
|---|---|---|---|---|---|
|
2階
|
10.4万円 5,000円 |
敷0.0万円 礼10.4万円 |
1K
20.8m2 |
|

































































































































































































































































































































































































