コスモリード溝の口
築年数 築33年
総階数7階建
- 溝口3丁目10-1
-
- 東急田園都市線 高津 徒歩5分
東急田園都市線 溝の口 徒歩9分
- 東急田園都市線 高津 徒歩5分
掲載物件2件
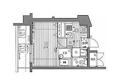
| 間取り図 | 階 | 賃料/管理費等 | 敷金/礼金 | 間取/面積 | |
|---|---|---|---|---|---|
|
3階
|
8.2万円 8,000円 |
敷8.2万円 礼8.2万円 |
1K
20.52m2 |
|
|
5階
|
8.4万円 8,000円 |
敷8.4万円 礼8.4万円 |
1K
20.52m2 |
|
























































































































































































































