
オープンレジデンシア大宮フロント
築年数 築3年
総階数10階建
- 下町1丁目21-1
-
- JR京浜東北・根岸線 大宮 徒歩6分
JR東北本線 さいたま新都心 徒歩15分
- JR京浜東北・根岸線 大宮 徒歩6分
掲載物件2件
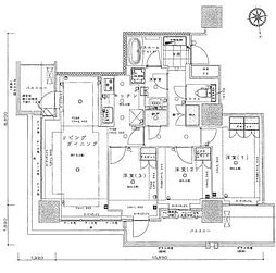
間取り図 | 階 | 賃料/管理費等 | 敷金/礼金 | 間取/面積 | |
---|---|---|---|---|---|
![]() |
10階
|
25.0万円 0円 |
敷25.0万円 礼37.5万円 |
3LDK
66.07m2 |
|
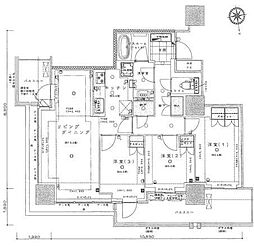
![]() |
10階
|
25.0万円 0円 |
敷25.0万円 礼37.5万円 |
3LDK
66.07m2 |
|