(仮称)横浜永楽町PJ
築年数 築5年
総階数11階建
- 永楽町2丁目17
-
- JR京浜東北・根岸線 関内 徒歩13分
横浜市営地下鉄ブルーライン 伊勢佐木長者町 徒歩3分
- JR京浜東北・根岸線 関内 徒歩13分
掲載物件1件
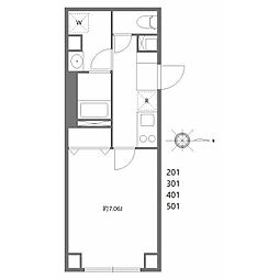
| 間取り図 | 階 | 賃料/管理費等 | 敷金/礼金 | 間取/面積 | |
|---|---|---|---|---|---|
|
6階
|
7.3万円 10,000円 |
敷0.0万円 礼0.0万円 |
1K
21.12m2 |
|















































































































































































































































































































































































































































