LiveCasa千本今出川
築年数 新築
総階数7階建
- 今出川通七本松東入西上善寺町
-
- 京福電気鉄道北野線 北野白梅町 徒歩12分
京都市営烏丸線 今出川 徒歩23分
- 京福電気鉄道北野線 北野白梅町 徒歩12分
掲載物件4件
| 間取り図 | 階 | 賃料/管理費等 | 敷金/礼金 | 間取/面積 | |
|---|---|---|---|---|---|
|
1階
|
15.6万円 10,000円 |
敷0.0万円 礼15.6万円 |
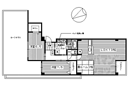
2LDK
50.35m2 |
|
|
2階
|
15.8万円 10,000円 |
敷0.0万円 礼15.8万円 |
2LDK
50.84m2 |
|
|
3階
|
15.9万円 10,000円 |
敷0.0万円 礼15.9万円 |
2LDK
50.84m2 |
|
|
2階
|
16.5万円 10,000円 |
敷0.0万円 礼16.5万円 |
2LDK
50.35m2 |
|























































































































































































































































































































































































































































































