せんぼん有彩館
築年数 築29年
総階数10階建
- 中立売通千本東入ル丹波屋町
-
- 京福電気鉄道北野線 北野白梅町 徒歩15分
JR山陰本線 二条 徒歩17分
- 京福電気鉄道北野線 北野白梅町 徒歩15分
掲載物件4件
| 間取り図 | 階 | 賃料/管理費等 | 敷金/礼金 | 間取/面積 | |
|---|---|---|---|---|---|
|
2階
|
14.2万円 15,000円 |
敷0.0万円 礼14.2万円 |
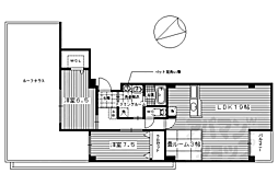
3LDK
71.23m2 |
|
|
2階
|
14.2万円 15,000円 |
敷0.0万円 礼14.2万円 |
3LDK
71.23m2 |
|
|
2階
|
14.2万円 15,000円 |
敷0.0万円 礼14.2万円 |
3LDK
71.23m2 |
|
|
2階
|
14.2万円 15,000円 |
敷0.0万円 礼14.2万円 |
3LDK
71.23m2 |
|















































































































































































































































































































































































































































































































































































































































































































































































































































