増田屋ビル
築年数 築7年
総階数10階建
- 中金仏町
-
- 京都市営烏丸線 五条 徒歩7分
阪急京都本線 大宮 徒歩15分
- 京都市営烏丸線 五条 徒歩7分
掲載物件4件
| 間取り図 | 階 | 賃料/管理費等 | 敷金/礼金 | 間取/面積 | |
|---|---|---|---|---|---|
|
7階
|
12.7万円 15,000円 |
敷0.0万円 礼12.7万円 |
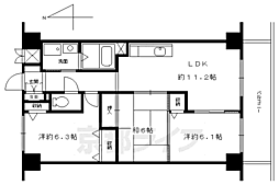
1LDK
43.24m2 |
|
|
7階
|
12.7万円 15,000円 |
敷0.0万円 礼12.7万円 |
1LDK
43.24m2 |
|
|
7階
|
12.7万円 15,000円 |
敷0.0万円 礼12.7万円 |
1LDK
43.24m2 |
|
|
7階
|
12.7万円 15,000円 |
敷0.0万円 礼12.7万円 |
1LDK
43.24m2 |
|






























































































































































































































































































































































































































































































































































































































































































































































































































































