
BloomStage白金
築年数 築2年
総階数3階建
- 白金1丁目7-8
-
- 福岡市地下鉄七隈線 薬院 徒歩7分
掲載物件1件
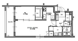
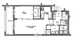
間取り図 | 階 | 賃料/管理費等 | 敷金/礼金 | 間取/面積 | |
---|---|---|---|---|---|
![]() |
1階
|
14.7万円 8,000円 |
敷0.0万円 礼29.4万円 |
1LDK
51.6m2 |
|