GRAND LATTICE KAWARAMACHI SHIC
築年数 築3年
総階数6階建
- 下珠数屋町通高倉東入住吉町
-
- JR東海道・山陽本線 京都 徒歩8分
京阪本線 七条 徒歩7分
- JR東海道・山陽本線 京都 徒歩8分
掲載物件3件
| 間取り図 | 階 | 賃料/管理費等 | 敷金/礼金 | 間取/面積 | |
|---|---|---|---|---|---|
|
6階
|
15.1万円 11,000円 |
敷0.0万円 礼26.0万円 |
2DK
40.32m2 |
|
|
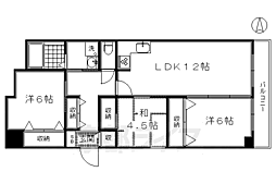
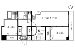
4階
|
17.6万円 11,000円 |
敷0.0万円 礼29.0万円 |
2LDK
52.27m2 |
|
|
5階
|
18.3万円 11,000円 |
敷0.0万円 礼28.0万円 |
3LDK
58.32m2 |
|






































































































































































































































































































































































































































































































































































































































































































































































































































































































































