スカイノブレ京都四条大宮
築年数 築36年
総階数7階建
- 壬生相合町
-
- 阪急京都本線 大宮 徒歩7分
掲載物件4件
| 間取り図 | 階 | 賃料/管理費等 | 敷金/礼金 | 間取/面積 | |
|---|---|---|---|---|---|
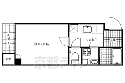
|
4階
|
5.0万円 0円 |
敷5.0万円 礼0.0万円 |
1R
20.4m2 |
|
|
4階
|
5.0万円 0円 |
敷5.0万円 礼0.0万円 |
1R
20.4m2 |
|
|
7階
|
5.0万円 0円 |
敷0.0万円 礼10.0万円 |
1R
21.52m2 |
|
|
4階
|
5.0万円 0円 |
敷5.0万円 礼0.0万円 |
1R
20.4m2 |
|
































































































































































































































































































































































































































































































































































































































































































































































