プランドール2
築年数 築31年
総階数7階建
- 真苧屋町
-
- JR東海道・山陽本線 京都 徒歩3分
京都市営烏丸線 五条 徒歩7分
- JR東海道・山陽本線 京都 徒歩3分
掲載物件3件
| 間取り図 | 階 | 賃料/管理費等 | 敷金/礼金 | 間取/面積 | |
|---|---|---|---|---|---|
|
4階
|
6.5万円 6,000円 |
敷0.0万円 礼6.5万円 |
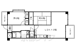
1K
26m2 |
|
|
4階
|
6.5万円 6,000円 |
敷0.0万円 礼6.5万円 |
1K
26m2 |
|
|
4階
|
6.5万円 6,000円 |
敷0.0万円 礼6.5万円 |
1K
26m2 |
|




















































































































































































































































































































































































































































































































































































































































































































































































































