KODAヒルズ京都鴨川
築年数 築36年
総階数7階建
- 福稲高原町
-
- JR東海道・山陽本線 京都 徒歩26分
JR奈良線 東福寺 徒歩11分
- JR東海道・山陽本線 京都 徒歩26分
掲載物件4件
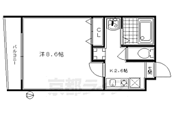
| 間取り図 | 階 | 賃料/管理費等 | 敷金/礼金 | 間取/面積 | |
|---|---|---|---|---|---|
|
7階
|
3.6万円 5,000円 |
敷0.0万円 礼0.0万円 |
1K
20m2 |
|
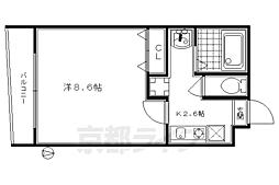
|
7階
|
3.6万円 5,000円 |
敷0.0万円 礼0.0万円 |
1K
20m2 |
|
|
7階
|
3.6万円 5,000円 |
敷0.0万円 礼0.0万円 |
1K
20m2 |
|
|
7階
|
3.6万円 5,000円 |
敷0.0万円 礼0.0万円 |
1K
20m2 |
|

















































































































































































































































































































































































































































































































































































































































































































































































































































































































































































































































