サンライズ聖蹟桜ヶ丘
築年数 築4年
総階数2階建
- 関戸2丁目6-5
-
- 京王線 聖蹟桜ヶ丘 徒歩7分
小田急多摩線 小田急永山 バス10分新大栗橋下車 徒歩8分
- 京王線 聖蹟桜ヶ丘 徒歩7分
掲載物件4件
| 間取り図 | 階 | 賃料/管理費等 | 敷金/礼金 | 間取/面積 | |
|---|---|---|---|---|---|
|
-
|
13.4万円 4,500円 |
敷13.4万円 礼13.4万円 |
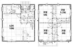
1LDK
60.16m2 |
|
|
-
|
13.4万円 4,500円 |
敷13.4万円 礼13.4万円 |
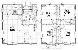
1LDK
60.16m2 |
|
|
-
|
13.4万円 4,500円 |
敷13.4万円 礼13.4万円 |
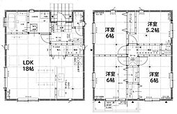
1LDK
60.16m2 |
|
|
2階
|
13.4万円 4,500円 |
敷13.4万円 礼13.4万円 |
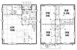
1LDK
60.16m2 |
|



























































































































































































































































































































































































































































