開田1丁目貸家
築年数 築49年
総階数2階建
- 開田1丁目
-
- JR東海道・山陽本線 長岡京 徒歩9分
阪急京都本線 長岡天神 徒歩9分
- JR東海道・山陽本線 長岡京 徒歩9分
掲載物件1件
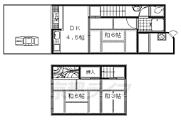
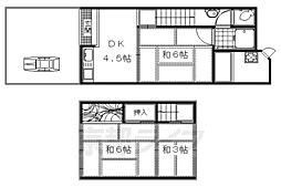
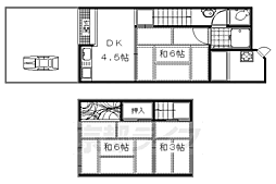
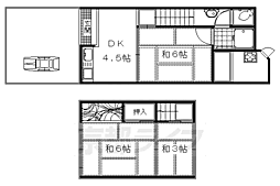
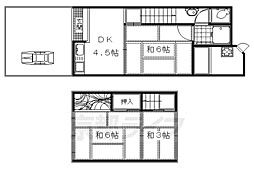
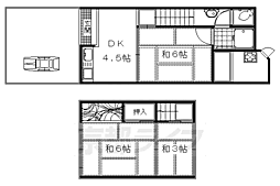
| 間取り図 | 階 | 賃料/管理費等 | 敷金/礼金 | 間取/面積 | |
|---|---|---|---|---|---|
|
-
|
4.0万円 0円 |
敷5.0万円 礼5.0万円 |
2DK
35.45m2 |
|



























































































































































































































































































































































