テラスハウス矢部A棟
築年数 築33年
総階数2階建
- 円行
-
- 小田急江ノ島線 湘南台 徒歩12分
小田急江ノ島線 長後 徒歩27分
- 小田急江ノ島線 湘南台 徒歩12分
掲載物件2件
| 間取り図 | 階 | 賃料/管理費等 | 敷金/礼金 | 間取/面積 | |
|---|---|---|---|---|---|
|
1階
|
7.8万円 2,000円 |
敷15.6万円 礼0.0万円 |
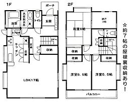
3DK
52.99m2 |
|
|
1階
|
7.8万円 2,000円 |
敷15.6万円 礼0.0万円 |
3DK
52.99m2 |
|


































































































































































































































