貸家 友岡西山17-5
築年数 築62年
総階数2階建
- 友岡西山17-5
-
- 阪急京都本線 西山天王山 徒歩10分
JR東海道・山陽本線 長岡京 徒歩24分
- 阪急京都本線 西山天王山 徒歩10分
掲載物件1件
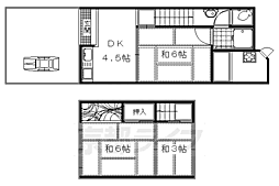
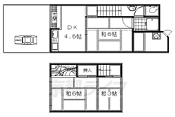
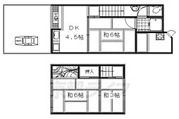
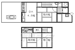
| 間取り図 | 階 | 賃料/管理費等 | 敷金/礼金 | 間取/面積 | |
|---|---|---|---|---|---|
|
-
|
5.6万円 0円 |
敷10.0万円 礼10.0万円 |
3DK
50m2 |
|
















































































































































































































































































































































































































































































































































































































