坂井照和貸家
築年数 築40年
総階数2階建
- 片縄5丁目
-
- JR博多南線 博多南 徒歩23分
掲載物件1件
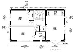
| 間取り図 | 階 | 賃料/管理費等 | 敷金/礼金 | 間取/面積 | |
|---|---|---|---|---|---|
|
1階
|
5.4万円 0円 |
敷0.0万円 礼10.8万円 |
3K
58.78m2 |
|

























