西脇市和布町 倉庫付き貸家
築年数 築53年
総階数2階建
- 和布町
-
- JR加古川線 新西脇 徒歩7分
JR加古川線 西脇市 徒歩19分
- JR加古川線 新西脇 徒歩7分
掲載物件1件
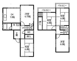
| 間取り図 | 階 | 賃料/管理費等 | 敷金/礼金 | 間取/面積 | |
|---|---|---|---|---|---|
|
2階
|
6.0万円 1,000円 |
敷0.0万円 礼6.0万円 |
3DK
79.65m2 |
|

















































































































































































































































































































































































































