岸部南連棟貸家
築年数 築63年
総階数1階建
- 岸部南3丁目
-
- JR東海道・山陽本線 岸辺 徒歩9分
阪急京都本線 正雀 徒歩14分
- JR東海道・山陽本線 岸辺 徒歩9分
掲載物件4件
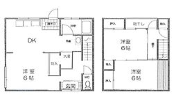
| 間取り図 | 階 | 賃料/管理費等 | 敷金/礼金 | 間取/面積 | |
|---|---|---|---|---|---|
|
1階
|
3.5万円 0円 |
敷0.0万円 礼10.0万円 |
2K
23.14m2 |
|
|
-
|
3.5万円 0円 |
敷0.0万円 礼10.0万円 |
2K
23.14m2 |
|
|
-
|
3.5万円 0円 |
敷0.0万円 礼10.0万円 |
2K
23.14m2 |
|
|
1階
|
3.5万円 0円 |
敷0.0万円 礼10.0万円 |
2K
23.14m2 |
|
















































































































































































































































































































































































































































































































































