興戸下ノ川原貸家
築年数 築52年
総階数2階建
- 興戸下ノ川原
-
- 近鉄京都線 興戸 徒歩4分
JR片町線(学研都市線) 同志社前 徒歩8分
- 近鉄京都線 興戸 徒歩4分
掲載物件2件
| 間取り図 | 階 | 賃料/管理費等 | 敷金/礼金 | 間取/面積 | |
|---|---|---|---|---|---|
|
-
|
7.7万円 0円 |
敷7.7万円 礼0.0万円 |
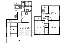
5DK
75.25m2 |
|
|
-
|
7.7万円 0円 |
敷7.7万円 礼0.0万円 |
5DK
75.25m2 |
|















































































































































































































