向島吹田河原町貸家
築年数 築53年
総階数2階建
- 向島吹田河原町
-
- 京阪宇治線 観月橋 徒歩14分
近鉄京都線 向島 徒歩19分
- 京阪宇治線 観月橋 徒歩14分
掲載物件4件
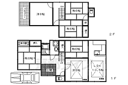
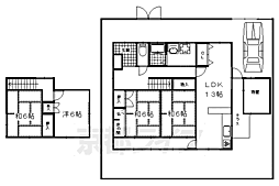
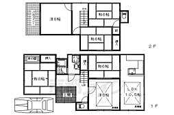
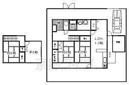
| 間取り図 | 階 | 賃料/管理費等 | 敷金/礼金 | 間取/面積 | |
|---|---|---|---|---|---|
|
-
|
5.0万円 0円 |
敷5.0万円 礼10.0万円 |
3DK
47.52m2 |
|
|
-
|
5.0万円 0円 |
敷5.0万円 礼10.0万円 |
3DK
47.52m2 |
|
|
-
|
5.0万円 0円 |
敷5.0万円 礼10.0万円 |
3DK
47.52m2 |
|
|
-
|
5.0万円 0円 |
敷5.0万円 礼10.0万円 |
3DK
47.52m2 |
|







































































































































































































































































































































































































































































































































































































































































































































































