貸家 大山崎町円明寺長慶9-8
築年数 築52年
総階数1階建
- 乙訓郡大山崎町字円明寺小字長慶9-8
 - 
														
- 阪急京都本線 西山天王山 徒歩10分
阪急京都本線 大山崎 徒歩28分 
 - 阪急京都本線 西山天王山 徒歩10分
 
掲載物件1件
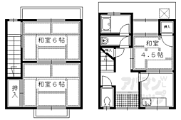
| 間取り図 | 階 | 賃料/管理費等 | 敷金/礼金 | 間取/面積 | |
|---|---|---|---|---|---|
														 
														 | 
													
														 - 
													 | 
													
														 4.1万円 0円  | 
													
														 敷10.0万円 礼10.0万円  | 
													
														 
															2DK
																				 
													36m2  | 
													|
														








											
														



























											
														



























														




























											
														


























											
														



























														




























											
														























											
														



























											
														



























											
														



























											
														























