
ローリエ朝霞台
築年数 築51年
総階数7階建
- 泉水3丁目
-
- 東武東上線 朝霞台 徒歩16分
JR武蔵野線 北朝霞 徒歩17分
- 東武東上線 朝霞台 徒歩16分
掲載物件1件
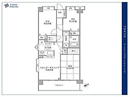
間取り図 | 階 | 価格 | 間取/面積 | ||
---|---|---|---|---|---|
![]() |
6階
|
1,680.0万円 |
2LDK
56.7m2 |
||