エンゼルハイム常盤台第二
築年数 築63年
総階数4階建
- 常盤台47-11
-
- 相鉄本線 上星川 徒歩11分
相鉄本線 和田町 徒歩15分
- 相鉄本線 上星川 徒歩11分
掲載物件1件
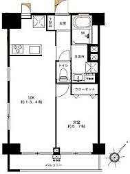
| 間取り図 | 階 | 価格 | 間取/面積 | ||
|---|---|---|---|---|---|
|
4階
|
520.0万円 |
1K
29.59m2 |
||


















































































































































































































































































































































































































