
ライオンズマンション堀切菖蒲園
築年数 築38年
総階数7階建
- 堀切2丁目
-
- 京成本線 堀切菖蒲園 徒歩6分
東武伊勢崎線 堀切 徒歩19分
- 京成本線 堀切菖蒲園 徒歩6分
掲載物件1件
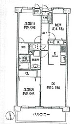
間取り図 | 階 | 価格 | 間取/面積 | ||
---|---|---|---|---|---|
![]() |
5階
|
4,299.0万円 |
3LDK
66m2 |
||