リバーサイド壱番街 2号棟
築年数 築31年
総階数5階建
- 伊勢原町5丁目
-
- 東武東上線 鶴ヶ島 バス8分おいせ橋下車 徒歩6分
東武東上線 霞ヶ関 徒歩22分
- 東武東上線 鶴ヶ島 バス8分おいせ橋下車 徒歩6分
掲載物件1件
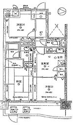
| 間取り図 | 階 | 価格 | 間取/面積 | ||
|---|---|---|---|---|---|
|
3階
|
1,180.0万円 |
2LDK
73.11m2 |
||




























































































































































































































































































































































































































