日神パレステージ大宮パルティール
築年数 築20年
総階数13階建
- 下町1丁目
-
- JR京浜東北・根岸線 大宮 徒歩6分
JR高崎線 さいたま新都心 徒歩16分
- JR京浜東北・根岸線 大宮 徒歩6分
掲載物件1件
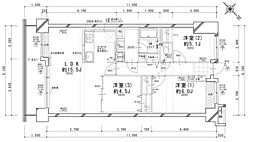
| 間取り図 | 階 | 価格 | 間取/面積 | ||
|---|---|---|---|---|---|
|
6階
|
5,280.0万円 |
2LDK
54.27m2 |
||






























































































































































































































































































































































































































































































































































