ライオンズマンション山科区御陵 中古マンション
築年数 築38年
総階数3階建
- 御陵大谷町
-
- 京都地下鉄東西線 御陵 徒歩11分
JR湖西線 山科 徒歩14分
- 京都地下鉄東西線 御陵 徒歩11分
掲載物件2件
| 間取り図 | 階 | 価格 | 間取/面積 | ||
|---|---|---|---|---|---|
|
1階
|
2,280.0万円 |
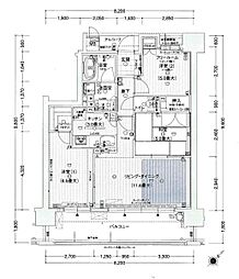
2SLDK
64.59m2 |
||
|
1階
|
2,280.0万円 |
2SLDK
64.59m2 |
||






















































































































































































































































































































