
ハイネス生駒
築年数 築51年
総階数5階建
- 俵口町814-1
-
- 近鉄奈良線 生駒 徒歩17分
近鉄奈良線 東生駒 徒歩29分
- 近鉄奈良線 生駒 徒歩17分
掲載物件1件
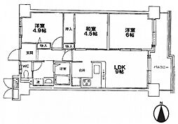
間取り図 | 階 | 価格 | 間取/面積 | ||
---|---|---|---|---|---|
![]() |
4階
|
480.0万円 |
3DK
47.92m2 |
||