ロイヤルシャトー東加古川 JR「東加古川駅」徒歩12分
築年数 築30年
総階数7階建
- 平岡町新在家
-
- JR山陽本線 東加古川 徒歩12分
山陽電鉄本線 別府 徒歩29分
- JR山陽本線 東加古川 徒歩12分
掲載物件1件
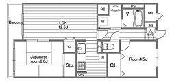
| 間取り図 | 階 | 価格 | 間取/面積 | ||
|---|---|---|---|---|---|
|
2階
|
1,950.0万円 |
4LDK
81.12m2 |
||



































































































































































































































































































