グリーンヒル貝取1-28
築年数 築39年
総階数4階建
- 貝取1丁目
-
- 小田急多摩線 小田急永山 徒歩14分
京王相模原線 京王永山 徒歩14分
- 小田急多摩線 小田急永山 徒歩14分
掲載物件1件
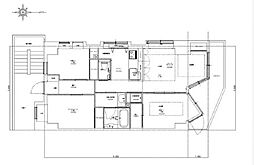
| 間取り図 | 階 | 価格 | 間取/面積 | ||
|---|---|---|---|---|---|
|
4階
|
2,780.0万円 |
3LDK
90.19m2 |
||


































































































































































































































































































































































































































































































