須磨区妙法寺字アチラムキ
築年数 築47年
総階数2階建
- 妙法寺字アチラムキ
-
- 神戸市西神・山手線 妙法寺 バス9分風早下車 徒歩11分
神戸市西神・山手線 長田 バス13分藪中下車 徒歩7分
- 神戸市西神・山手線 妙法寺 バス9分風早下車 徒歩11分
掲載物件1件
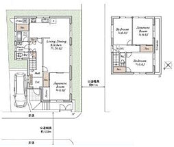
| 間取り図 | 階 | 価格 | 間取/面積 | ||
|---|---|---|---|---|---|
|
-
|
380.0万円 |
3DK
55.43m2 |
||










































































































































































































