阿久和東3丁目 中古戸建
築年数 築16年
総階数2階建
- 阿久和東3丁目13-14
-
- 相鉄本線 希望ケ丘 徒歩21分
相鉄いずみ野線 南万騎が原 徒歩30分
- 相鉄本線 希望ケ丘 徒歩21分
掲載物件1件
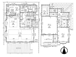
| 間取り図 | 階 | 価格 | 間取/面積 | ||
|---|---|---|---|---|---|
|
-
|
3,780.0万円 |
4LDK
97.71m2 |
||

















































































































































































































































































