
城ケ崎4丁目 中古戸建
築年数 築43年
総階数2階建
- 城ケ崎4丁目
-
- JR日豊本線 南宮崎 徒歩24分
JR日豊本線 宮崎 徒歩34分
- JR日豊本線 南宮崎 徒歩24分
掲載物件1件
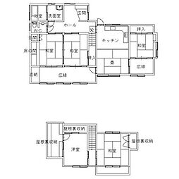
間取り図 | 階 | 価格 | 間取/面積 | ||
---|---|---|---|---|---|
![]() |
-
|
1,500.0万円 |
5LDK
133.65m2 |
||